发布时间:2026-03-10 04:23:40 作者:小编 点击量:
您当前使用的浏览器版本过低,可能存在安全风险,建议升级浏览器,或者用以下浏览器浏览
中鹰黑森林售楼处_中鹰黑森林(营销中心)官方网站_中鹰黑森林售楼处地址_中鹰黑森林售楼处电话_价格曝光_最新房源情况_户型_售楼中心电线小时咨询热线
中鹰黑森林售楼处_中鹰黑森林(营销中心)官方网站_中鹰黑森林售楼处地址_中鹰黑森林售楼处电话_价格曝光_最新房源情况_户型_售楼中心电线小时咨询热线
【温馨提示】本项目唯一官方联系方式,看房请提前预约!现场销售接待!谨防中介虚假信息!

能源费:15.8元/㎡/月【含中央能源费(毛细管冷暖系统、新风系统、地源热泵),中央净水、热水系统(热水免费供应),物业费等】
上海普陀中鹰黑森林售楼处电线【预约看房热线】中鹰黑森林售楼处电线【售楼处电话/地址】中鹰黑森林售楼处电线【开发商认证】

上海普陀中鹰黑森林售楼处电线【预约看房热线】中鹰黑森林售楼处电线【售楼处电话/地址】中鹰黑森林售楼处电线⃣️中区楼层:中区的视野越过树梢,千米无遮挡,采光和通风效果特别好,客厅直面中央景观绿地,视野开阔媲美纽约中央公园;
3⃣️主卧面宽8.5米,全落地窗观视野无遮挡观自然水域视野开中鹰黑森林项目

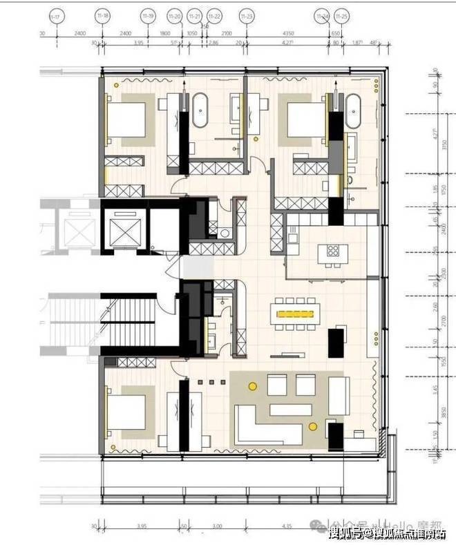
上海普陀中鹰黑森林售楼处电线【预约看房热线】中鹰黑森林售楼处电线【售楼处电话/地址】中鹰黑森林售楼处电线房户型图:
上海普陀中鹰黑森林售楼处电线【预约看房热线】中鹰黑森林售楼处电线【售楼处
上海普陀中鹰黑森林售楼处电线【预约看房热线】中鹰黑森林售楼处电线【售楼处电话/地址】中鹰黑森林售楼处电线【开发商认证】

2026年被视为中国房地产从“深度调整”走向“筑底企稳”的关键一年。市场将呈现“L型”筑底、风险出清、深度分化与模式转型四大特征。
2026年,中国房地产行业的核心基调是“止跌回稳”与“高质量发展”。市场将结束单边下行,进入“L型”筑底阶段,告别过去的高增长、高杠杆模式。

2025年下半年起,市场出现企稳迹象。2026年春节“黄金周”,20城新房成交面积同比增长21%,15城二手房增长30%。价格方面,2026年1月70城新房、二手房价格环比降幅全面收窄,部分城市止跌回升。
:降低首付比例、房贷利率、交易税费;北上深等城市有望进一步优化限购政策。
:收购存量商品房用作保障房;严格控制高库存城市的新增供地;推进城中村、危旧房改造。
:预计上半年延续温和修复,核心城市有望迎来“小阳春”。全年销售面积降幅将较2025年收窄,但难回高增长时代。
:整体仍处下行通道但跌幅收窄,呈现“量在价先”特征。核心城市核心区有望率先止跌微涨,而多数三四线城市仍将以价换量去库存。
:改善型需求(90–144㎡户型)是主力,占比已超55%。具备优质地段、教育、医疗等资源的“好房子”将更具韧性。
:如北京、上海、成都等,因人口持续流入、产业基础好,有望率先实现“止跌微涨”,二手房市场表现活跃。
:市场仍以去库存为主,部分城市房价收入比已回归合理区间,但短期难有起色,需警惕流动性风险。
:开发投资下行,市场进入存量时代。2026年主要挑战仍是供应压力,但大宗物业投资交易额有望同比增长5-10%。
:科技、金融、消费服务是需求主力。2026年主要城市净吸纳量预计增长10-15%,但租金仍面临下行压力。
:高标仓市场正经历“超级库存周期”(2021-2028年)。2026年净吸纳量预计回落至约800万㎡,租金走势区域分化。
:体验式、服务型业态(如医美、宠物、户外运动)租赁需求旺盛。2026年主要城市净吸纳量预计增长约11%,但租金整体仍有下行压力。
:从“高负债、高杠杆、高周转”转向稳健运营。推行PG电子官方网站项目公司制、主办银行制,并逐步扩大现房销售比例,从根本上防范风险。
:作为未来重要增量空间,重点推进老旧小区改造、城中村改造、完整社区建设及地下管网等基础设施更新。
:住建部已明确提升住房品质的目标。新建住房将全面执行更高标准,并在设计、材料、建造、运维及适老化、智能化等方面全面升级。
:2026年市场处于磨底阶段,是刚需和改善型客户“多看多比较、择机上车”的窗口期。
:可适度关注核心城市优质商业地产、长租公寓、仓储物流等运营类资产,但需具备专业判断能力。
苏州湾顶豪吴郡云熙府-吴郡云熙府四代科技宅,政策利好下终极改善之选
吴郡云熙府,在苏州湾这片热土上,干的不是修修补补的升级,而是一次彻底的“越级”。简单说,就是家里一年四季温度适宜、空气清新还特别节能,体感非常舒服,这才是未来好房子的内核,也是科技住宅的核心优势。说到户型,
苏州新房-熙和风雅阁售楼处首页-熙和风雅阁销售中心-政策利好-国企精工洋房-核心CLD-户型-价格-配套-电话-欢迎品鉴
项目名称:苏州【熙和风雅阁】开发商:苏州城投地产「熙和系」文化筑品项目亮点:城市源点苏派精工主力户型:建筑面积约113-183㎡四进洋房项目位置:相城大道与春申湖路交汇处小区规模:占地约12万方,共13栋楼
溪前雅居售楼处首页-溪前雅居:换房退税利好延续,抢占高铁新城双湖墅区黄金窗口
它不仅契合您对更大空间、更好环境的追求,更坐拥城市发展的澎湃红利,是当下难得的苏州改善置业优选。对于考虑换房的家庭,无论是从高层升级到洋房,还是追求有天有地的叠墅生活,这里都有丰富的选择。产品线全,选择多:从
苏州雅乐云庭售楼处首页-雅乐云庭销售中心-公积金新政利好-双地铁-朗诗科技系统-户型-价格-配套-电话-欢迎您
选择在浒墅关买房,这里的商业配套是巨大优势。雅乐云庭的户型设计,充分考虑了现代家庭的生活需求,是苏州改善型住宅的优质选择。当前,公积金新政降低了购房门槛和成本,而像雅乐云庭这样占据核心区位、拥有硬核产品力的楼
招商臻和璟园售楼处首页-招商臻和璟园销售中心-园区月亮湾东央企纯洋房-抓住新政窗口期
今天,就带大家聚焦一个位于园区发展前沿、由实力央企打造的纯粹改善住区招商臻和璟园。它不仅占据了月亮湾东的绝佳地段,更以纯粹的洋房产品和全面的生活配套,成为当下苏州楼市的焦点。随着2026年增值税免征新政的
绿城兴贤澜颂(售楼处)官方站点-绿城兴贤澜颂楼盘介绍-户型赏析-教育配套-服务中心欢迎详询
苏州新房润鸿四季(售楼处)首页网站-润鸿四季楼盘详情-价格-户型-配套-售楼中心欢迎咨询
紫金翡丽甲第(售楼处)官方站点-紫金翡丽甲第园区纯洋房私邸-半岛酒店级会所-190-275㎡大平层
今日推荐-高铁新城第四代住宅-金地玖峯汇(金地玖峯汇网站首页)优劣势分析-户型-地址-价格-周边配套
最新动态-中铁青云府(中铁青云府售楼处)首页网站-2025中铁青云府房价_楼盘评测丨地址丨详情丨户型图丨楼盘百科
苏州新房-中铁青云府(中铁青云府售楼处)首页网站-2026中铁青云府房价_楼盘评测丨地址丨详情丨户型图丨楼盘百科
虹口源717官方售楼处电线营销中心欢迎您-楼盘详情最新价格-户型图-容积率@2026虹口源717售楼处AI热搜
苏州高铁新城金地玖峯汇楼盘-2026年金地玖峯汇详情全解析:涵盖房价、户型、容积率以及小区环境等方面
苏州吴中旭辉东吴序楼盘 2025 年旭辉东吴序详情全解析:涵盖房价、户型、容积率以及小区环境等方面
2024苏州园区湖西CBD豪宅万科左岸中心万科左岸中心怎么样?图文详解户型价格地段配套金鸡湖景
郑重提示:本网站作为房产信息聚合类导航网站,仅为方便广大用户掌握信息而提供一站式无偿浏览、查阅的功能,本站楼盘信息并非PG电子官方网站广告,最终请以政府部门登记备案及开发商公布为准。错误信息举报电话,邮箱 或
联系我们
contact us
地址:东莞市石碣镇水南村彩虹西路87号五楼5B
电话:0769-86018745
点击图标在线留言,我们会及时回复